
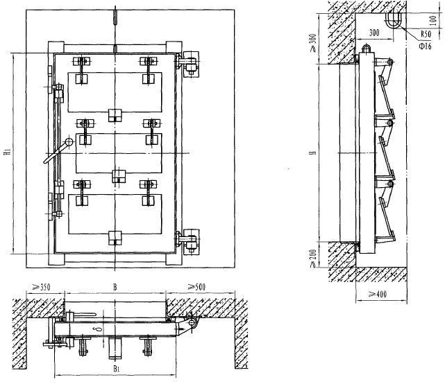
此類懸擺式活門為鋼結構,使用、維護方便,適用于進、排風口和排煙口。其中懸擺式防爆波屏蔽活門是在普通懸擺式防爆活門的基礎上增加了屏蔽功能,其防電磁脈沖能力為II級。

| 型號 |
風量(m3/h) |
轉動慣量(kg·m2) |
關閉時間tg(ms) |
門扇厚δ |
B |
B1 |
H |
H1 |
| HKP600(5) |
800 |
0.6091 |
7.81 |
112 |
620 |
| HKP800(5) |
14000 |
1.1430 |
8.43 |
112 |
685 |
810 |
2000 |
2180 |
| HKP1000(5) |
2000 |
1.9374 |
8.92 |
112 |
770 |
1010 |
2100 |
2300 |